7942 172nd StreetTinley Park, IL60477
Due to the health concerns created by Coronavirus we are offering personal 1-1 online video walkthough tours where possible.


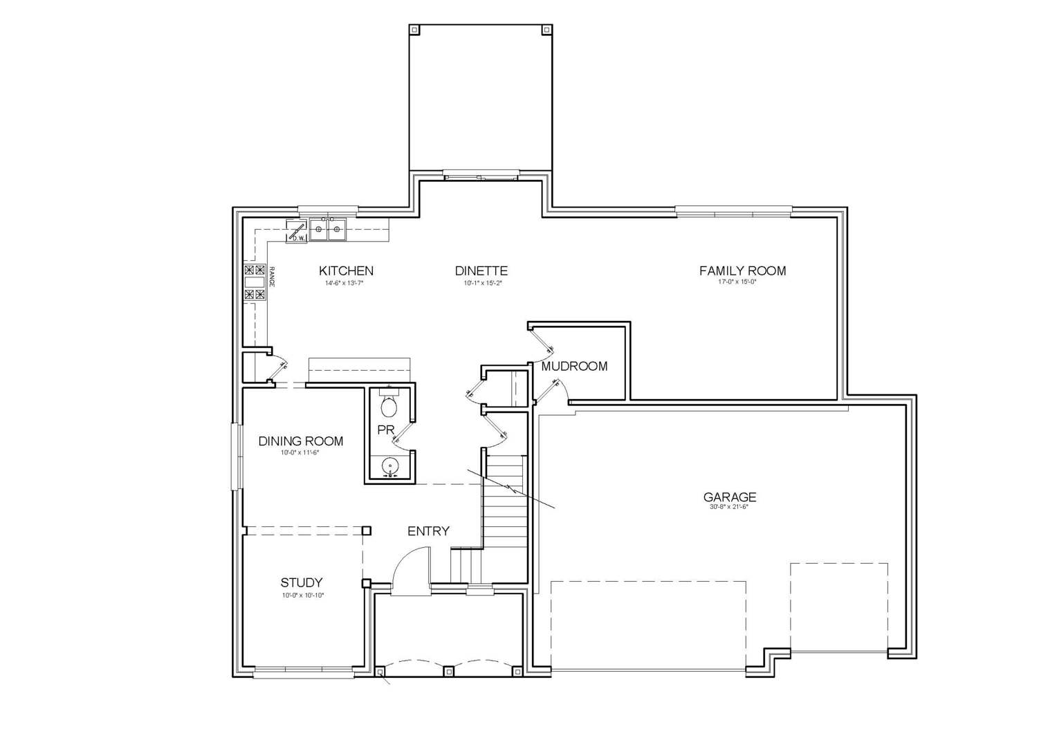
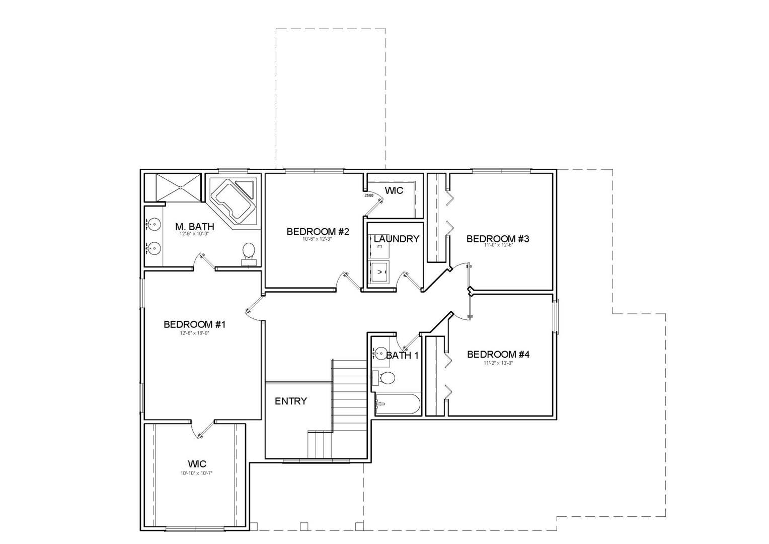
PRE- NEW CONSTRUCTION. Experience our Cullen Model with 4 bedrooms, 2.5 baths this two-story offers 2,700 sq. ft of thoughtful design. The main level features 9 ft ceilings, 3-inch oak flooring, a spacious family room with a 60" electric fireplace framed by stone and a custom surround. Kitchen with maple cabinetry and a large island. Light fixture and appliance allowances given. The primary suite includes a decorative ceiling, walk-in closet, and a custom shower. Additional highlights include a full 9 ft deep lookout basement with rough-in, a 3-car insulated and drywalled garage, Upgrades include a Trane high-efficiency furnace and air conditioner, brick and stone exterior on the first floor, 30-year architectural shingles, and concrete driveway, sidewalks, and front porch. A maintenance-free deck completes this impressive new build. Let's set up a meeting today! Construction to begin soon. Still time to pick some exterior and interior finishes for July delivery.
| a month ago | Listing updated with changes from the MLS® | |
| 3 months ago | Status changed to Active | |
| 3 months ago | Listing first seen on site |

Based on information submitted to the MLS GRID as of 2026-02-20 04:16 AM UTC. All data is obtained from various sources and may not have been verified by broker or MLS GRID. Supplied Open House Information is subject to change without notice. All information should be independently reviewed and verified for accuracy. Properties may or may not be listed by the office/agent presenting the information.
Last checked: 2026-02-20 04:16 AM UTC
MRED DMCA Copyright Information Copyright © 2026 Midwest Real Estate Data LLC. All rights reserved.

Did you know? You can invite friends and family to your search. They can join your search, rate and discuss listings with you.