230 Windsor Lane AWillowbrook, IL60527
Due to the health concerns created by Coronavirus we are offering personal 1-1 online video walkthough tours where possible.




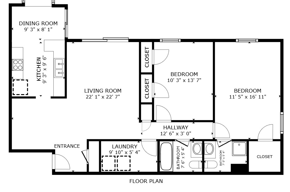
STANHOPE SQUARE is owners occupied, in Hinsdale Central HS district. This end unit ranch has both a breakfast and dining area and dual sliding doors from the kitchen/eating area as well as the living room. You will love the beautiful wood floors throughout and the plantation shutters in the bedrooms but most of all the garden window in the breakfast area - with a view to lovely green space and spring flowers. The in-unit utility room provides full size washer (8'2025) and 3 year old gas dryer, both with transferable warranties. The unit has been meticuliuosly maintained but is being sold "as-is". Pets must not exceed 40 pounds in weight. MAXIMUM TOTAL NUMBER OF PETS PER UNIT IS THREE PER VILLAGE ORDINANCE.
| 3 weeks ago | Listing updated with changes from the MLS® | |
| 3 weeks ago | Status changed to Active Under Contract | |
| a month ago | Listing first seen on site |

Based on information submitted to the MLS GRID as of 2026-04-14 11:04 AM UTC. All data is obtained from various sources and may not have been verified by broker or MLS GRID. Supplied Open House Information is subject to change without notice. All information should be independently reviewed and verified for accuracy. Properties may or may not be listed by the office/agent presenting the information.
Last checked: 2026-04-14 11:04 AM UTC
MRED DMCA Copyright Information Copyright © 2026 Midwest Real Estate Data LLC. All rights reserved.

Did you know? You can invite friends and family to your search. They can join your search, rate and discuss listings with you.